> download our portfolio in English



Shaken, not stirred, 2001
kantoor/appartementencomplex, ‘s-Hertogenbosch
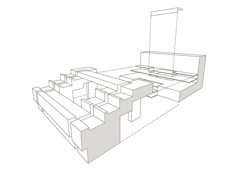
In dit ontwerp voor 12.000 m2 kantoren en 42 woningen in het stedenbouwkundig plan “Paleiskwartier” van bureau Khandekar wordt de vermenging van wonen en werken op gebouwniveau nagestreefd, wat gezien de verschillende verdiepingshoogtes voor kantoren en wonen geen eenvoudige zaak is. Het hart van het blok is uitgehold met twee leegtes, die functioneren als een atrium en een patio. Informele functies, zoals kantines, entree’s en presentatiezalen vinden eromheen hun plaats, en gebruiken de aanwezige ruimte optimaal. Hierdoor is er op de hoger gelegen verdiepingen ruimte om de appartementen als een dak over het hart van het blok heen te schuiven. Hierdoor ontstaan terraswoningen met werkelijk private buitenruimtes en majestueus zicht op het ernaast gelegen park.

> Programma: 42 woningen en 12.000 m2 kantoren & 140 parkeerplaatsen.

> Opdrachtgever: Ontwikkelingscombinatie Paleiskwartier BV

> Projectteam*: Tom Frantzen, Jeroen van de Ven, Henk Korteweg, Mark Huveneers
*dit project is ontworpen toen Tom Frantzen partner was van TARRA

> download projectdocumentatie