> download our portfolio in English



GAK, 2005
Herontwikkeling GAK kantoor, Amsterdam
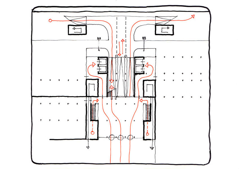
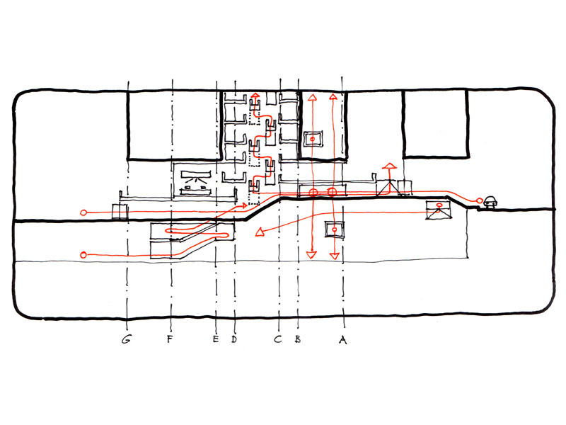
Het in 1959 door Ben Merkelbach ontworpen GAK gebouw aan de A10 West toont het optimistische geloof in techniek eind jaren vijftig en wordt als monument een belangrijk onderdeel van een multifunctioneel complex. Aan de snelwegzijde ontstaat tussen oudbouw en uitbreiding een enorm atrium dat de verschillende functies als een hotel, bioscopen, winkels, kantoren, woningen en een zorgcentrum ruimtelijk bindt. Alle denkbare looproutes lopen in drie dimensies door dit atrium, dat daarmee een belangrijke rol zal spelen in de sociale interactie binnen het complex.

> gepubliceerd in: Kruit C. 'Je moet als architect je eigen kansen creëren': DAX #28, 2009; 32

> Programma: 113.000 m2 gemengd programma & 1000 parkeerplaatsen.

> Opdrachtgever: AM-Multi / T+T Design

> Projectteam FRANTZEN et al architecten: Tom Frantzen, Karel van Eijken, Stephan Schülecke, Felix Reiter

> download projectdocumentatie