> download our portfolio in English



XYZ , 2001
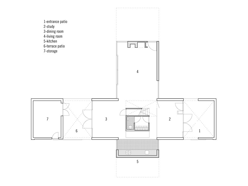
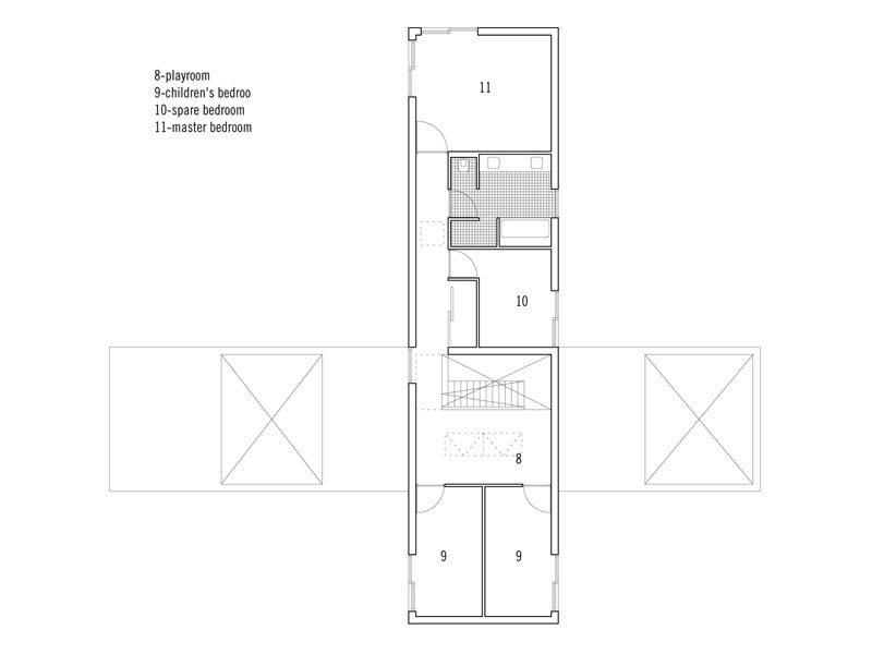
Woonhuis Thijssen-Van Westerlaak, Empel (‘s-Hertogenbosch)
Een minimale woning die de maximale kavelmaten benut.
X pakt de maximale breedte, Y pakt de maximale diepte en Z de maximale hoogte.

> gerealiseerd 2001
> gepubliceerd in: Quadrelli D, Sovran G. NL05. Milano: Librarsi Viaggi
> gepubliceerd in: Yoshida N, et al, ed. Young Architects in the Netherlands: Tom Frantzen. A+U 2004: 4: 60-66.

> Programma: pqrticulier woonhuis

> Opdrachtgever: Fam. Thijssen - Van Westerlaak

> Hoofdaannemer: MP Drijvers

> Adviseur constructies: Benders & Van Zon, Eindhoven

> Projectteam: Tom Frantzen, Jeroen van de Ven, Henk Korteweg, Jeroen
Verdonschot, Dennis De Poorter, Mark Huveneers
* dit project is ontworpen toen Tom Frantzen partner was van TARRA

> download projectdocumentatie