> download our portfolio in English



Villa Peninsula, 2007
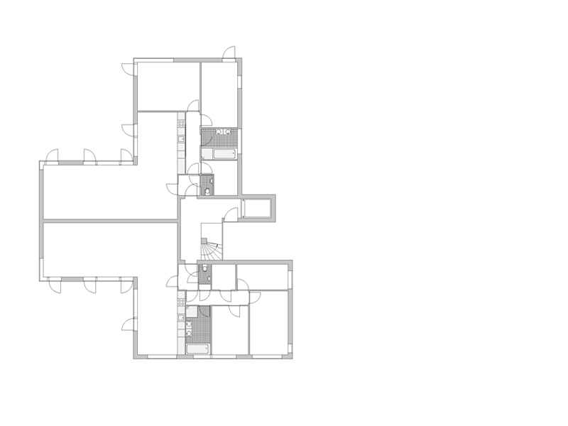
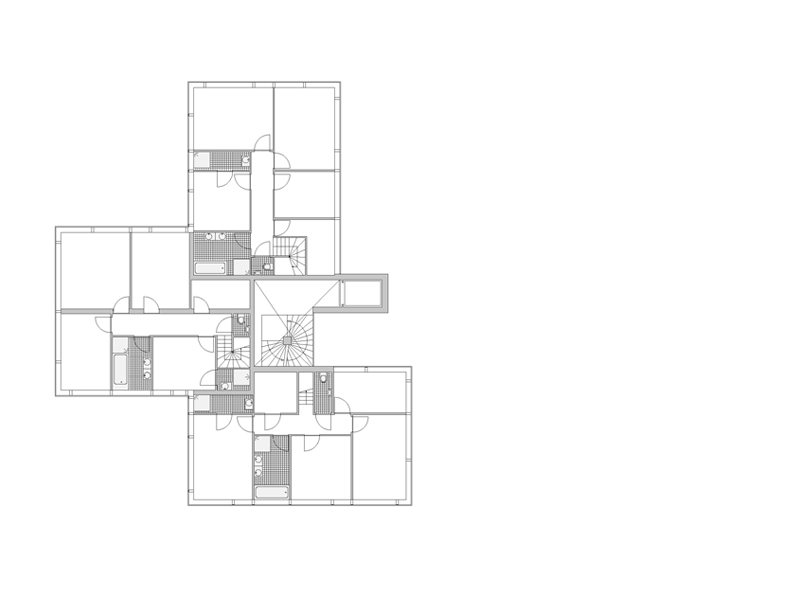
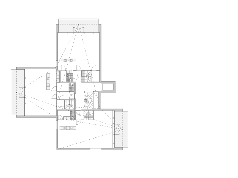
Villa met 5 appartementen, Hilversum
In het Noord-Westelijk Villagebied in Hilversum hoort een appartementencomplex eruit te zien als een "alzijdige" villa die overal optimaal gebruik maakt van zijn ligging in het prachtige bos. Het gebouw is zo ontworpen dat de bewoners altijd een eigen uitzicht op het bos hebben, zonder daarbij te merken dat er zich ook nog andere appartementen in het blok bevinden. Op de begane grond zijn twee bungalow appartementen ontworpen, terwijl de woonkamers van de drie maisonnettes erboven op direct onder de indrukwekkende dakconstructie tussen de boomkruinen zijn gelegen.

> Programma: 2 gelijkvloerse appartementen van 150 m2, 3 maisonnettes van 200 m2

> Opdrachtgever: B207, Almere

> Adviseur constructies: Breed ID (Gilbert van der Lee), Amsterdam

> Projectteam FRANTZEN et al architecten: Tom Frantzen, Karel van Eijken, Harold Aspers, Jasper Hermans, Gertjan Rohaan, Laura Reinders, Maja Popovic

> download projectdocumentatie