> download our portfolio in English



HALO, 2006
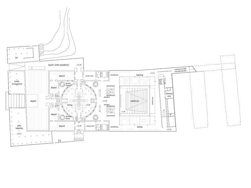
Prijsvraagontwerp uitbreiding “Asplund” City Library, Stockholm
De door Asplund ontworpen bibliotheek van Stockholm is een Zweeds icoon, dat bankbiljetten siert. De opgave om dit relatief kleine gebouw uit te breiden met een tweemaal zo groot volume aan de achterzijde heeft als keerzijde dat het icoon de achterzijde zou kunnen worden en de uitbreiding de voorzijde. In ons voorstel wordt de iconografische werking van de bibliotheek vergroot door het gebouw rondom de ronde leeszaal zwevend boven het dak uit te breiden. Tussen oudbouw en uitbreiding ontstaat op het dak een openbaar toegankelijk plein met prachtige uitzichten op de stad, de oorspronkelijke bibliotheek en het interieur van de uitbreiding.

> gepubliceerd in: Arranz F, Cámara C, Arquitectura PLUS 44 young international architects. Barcelona: Grupo Via: 42-43
> gepubliceerd in: Kruit C. 'Je moet als architect je eigen kansen creëren': DAX #28, 2009; 32-33


> Programma: 3700 m2 gemengd programma in het bestaande gebouw en 16600 m2 gemengd programma in de uitbreiding.

> Opdrachtgever openbare prijsvraag: Gemeente Stockholm, Zweden

> Projectteam: Tom Frantzen, Karel van Eijken, Stephan Schülecke, Felix Reiter

> download projectdocumentatie