> download our portfolio in English


Danskina hoofdkantoor & showroom, 2006
interieur, Amsterdam
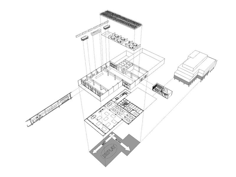
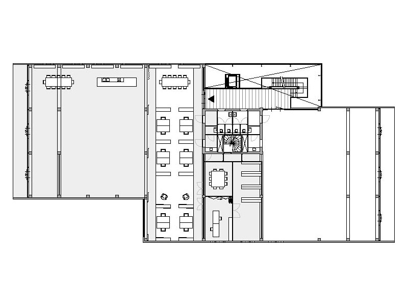
Met een verlaagd plafond van 276 simpele witte lampenkappen is de werkruimte afgebakend van de showroom. De slechte acoustiek van de cascoruimte is met dit plafond doeltreffend aangepast om op een relatief klein oppervlak veel werkplekken te realiseren. Hierdoor is de showroom maximaal groot en krijgen de carpetten alle ruimte die ze nodig hebben. Haaks op de werkplekken zijn twee tafels en een keuken geplaatst, die de bezoeker bij binnenkomst meteen naar het prachtige uitzicht begeleiden. Langs deze strook zijn aan de wand kasten gemonteerd met fronten waarin acoustisch materiaal is opgenomen.

> gerealiseerd 2007
> gepubliceerd in: Arranz F, Cámara C, Arquitectura PLUS 44 young international architects. Barcelona: Grupo Via: 42-43
> gepubliceerd in: Remmers, B. Onder één dak: Identity Matters 2008; 6/7: 34-35

> Programma: 600 m2 showroom en kantoor.

> Opdrachtgever: DANSKINA

> Aannemer: WHD interieurbouw

> Adviseur licht installaties: FLOS Amsterdam

> Projectteam FRANTZEN et al architecten: Tom Frantzen, Karel van Eijken, Stephan Schülecke, Felix Reiter

> download projectdocumentatie